
三片式内螺纹球阀及对焊连接球阀适用于PN1.0~4.0MPa,工作温度-29~180℃(密封圈为增强聚四氟乙烯)或-29~300℃(密封圈为对位聚苯)的各种管路上,用于截断或接通管路中的介质。选用不同的材质,可分别适用于水、蒸汽、油品、硝酸、醋酸等多种介质。
一、三片式内螺纹球阀产品特征
公称压力:1.6-6.4MPa
适用稳定范围:-20~232℃~350℃
适用介质:水、油、气及某些腐蚀性液体(W。O。G)
螺纹类型:G。NPT。BSPT。BSP。DI259/2999

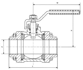
二、三片式内螺纹球阀主要连接尺寸及重量
|
SIZE
|
1/4"
|
3/8"
|
1/2"
|
3/4"
|
1"
|
1-1/4"
|
1-1/2"
|
2"
|
2-1/2"
|
3"
|
4"
|
|
D
|
11.6
|
12.7
|
15
|
20
|
25
|
32
|
38
|
50
|
65
|
80
|
100
|
|
L
|
68
|
68
|
72
|
82
|
90
|
112
|
120
|
145
|
185
|
210
|
268
|
|
H
|
100
|
100
|
130
|
130
|
165
|
165
|
190
|
190
|
250
|
250
|
280
|
|
W
|
100
|
100
|
130
|
130
|
165
|
165
|
190
|
190
|
250
|
250
|
280
|
三、三片式内螺纹球阀主要零件材料
|
零件名称
|
材质
|
|
|
阀体
|
不锈钢CF8M
|
碳钢
|
|
密封圈
|
聚四氟乙烯PTFE
|
碳钢WCB
|
|
阀盖
|
不锈钢CF8M
|
聚四氟乙烯PTFE
|
|
球体
|
不锈钢SS316
|
不锈钢SS316
|
|
阀杆
|
不锈钢SS316
|
不锈钢CF8M
|
|
螺母
|
不锈钢SS304
|
FCD45
|
|
垫圈
|
不锈钢SS304
|
FCD45
|
|
手柄套
|
塑料
|
塑料
|
|
手柄
|
不锈钢SS304
|
不锈钢SS304
|
|
阀杆螺母
|
不锈钢SS304
|
B7
|
|
填料压盖螺母
|
不锈钢SS304
|
FCD45
|
|
填料
|
聚四氟乙烯PTFE
|
聚四氟乙烯PTFE
|
|
止推垫圈
|
聚四氟乙烯PTFE
|
聚四氟乙烯PTFE
|
|
螺栓
|
不锈钢SS304
|
B8
|